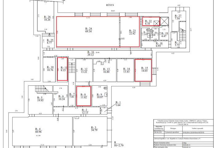
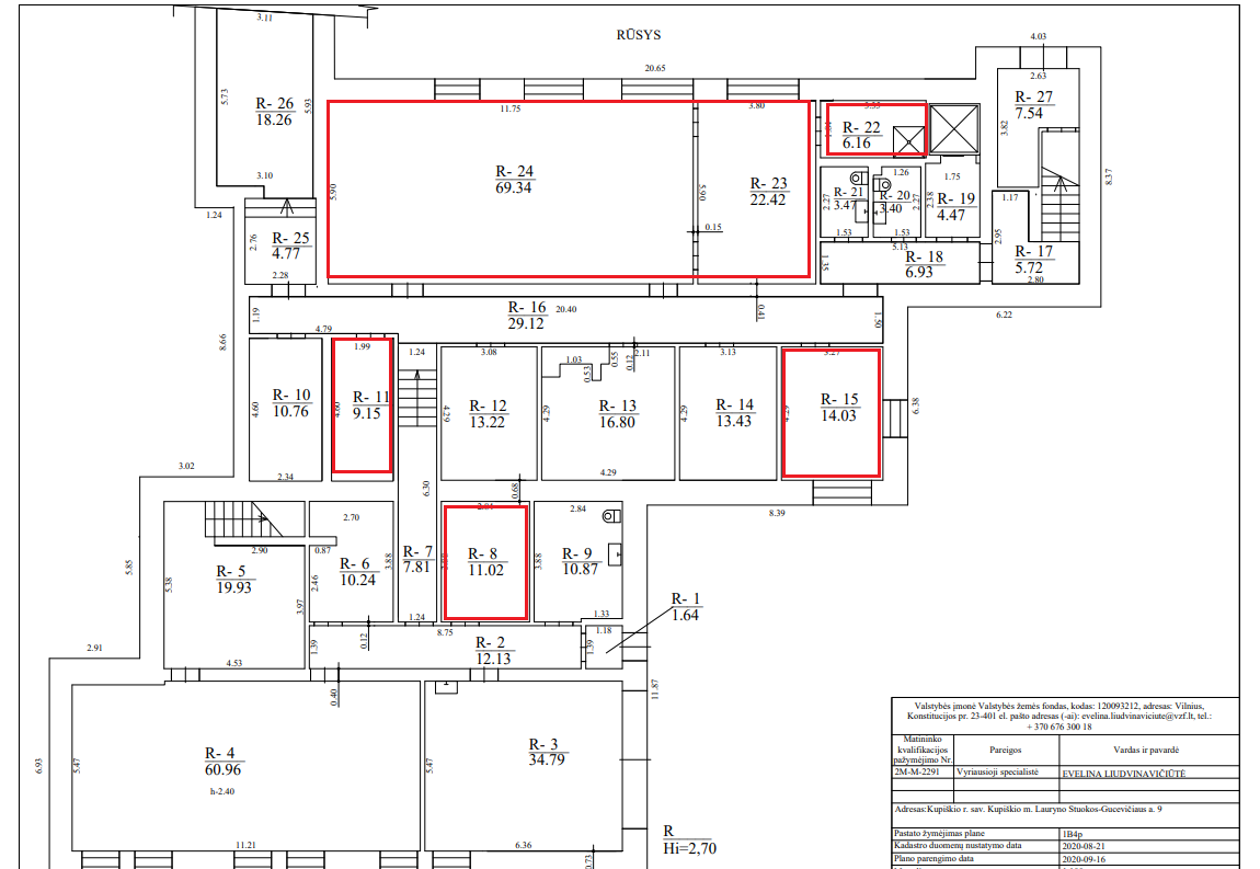
Ilgalaikė/ trumpalaikė administracinės paskirties patalpos nuoma (nuo 12,31 iki 176,67 kv. m) L. Stuokos-Gucevičiaus a.9, Kupiškis, Kupiškio r. sav.
Preliminari nuomos kaina be PVM
€302.11 mėn.
Preliminari 1m2 nuomos kaina be PVM
€1.71 m2/mėn.
Plotas
176.67 m2
Patalpų indeksas
R-8, R-11, R-15, R-22, R-23, R-24
Aukštas
Rūsys
Komunalinės paslaugos
Elektra – Yra, Vandentiekis, kanalizacija – Yra, centriniai, Šildymas – Yra, centrinis.
Kita
Patalpos yra rūsyje. Nuomojamos administracinei / archyvavimo veiklai. Nuomos objekto patalpos taip pat gali būti naudojamos kitoms veikloms, kurios yra nurodytos Statinio (jo patalpų) naudojimo ne pagal paskirtį atvejų ir tvarkos aprašo, patvirtinto Lietuvos Respublikos Vyriausybės 2011 m. spalio 12 d. nutarimu Nr. 1178 „Dėl statinio (jo patalpų) naudojimo ne pagal paskirtį atvejų ir tvarkos aprašo patvirtinimo“, 3.1. – 3.19., 3.22., 5.1. – 5.10., 5.12. – 5.17. punktuose, jei nuomos objekto naudojimas atitiks kitas šiuose punktuose nustatytas sąlygas.
Kontaktai
Jurgita Kavaliauskienė
Mob. telefonas
+37062058131
El. paštas
Jurgita.Kavaliauskiene@turtas.lt