Ilgalaikė/ trumpalaikė administracinės paskirties patalpų nuoma, Vilniaus g. 19, Lazdijai, Lazdijų r. sav.
Preliminari nuomos kaina be PVM
€92.23 mėn.
Preliminari 1m2 nuomos kaina be PVM
€0.62 m2/mėn.
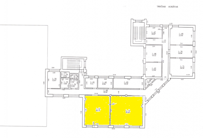
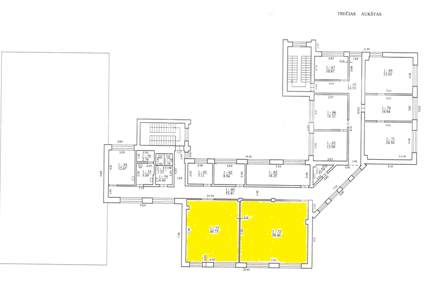
Plotas
148.76 m2
Patalpų indeksas
1-72, 1-73
Aukštas
3
Komunalinės paslaugos
Komunikacijos:
- Elektra - Yra
- Vandentiekis, kanalizacija – Yra, centriniai
- Šildymas – Yra, centrinis.
Kita
Patalpos nuomojamos administracinei veiklai. Nuomos objektas taip pat gali būti naudojamas kitoms veikloms, kurios yra nurodytos Statinio (jo patalpų) naudojimo ne pagal paskirtį atvejų ir tvarkos aprašo, patvirtinto Lietuvos Respublikos Vyriausybės 2011 m. spalio 12 d. nutarimu Nr. 1178 „Dėl statinio (jo patalpų) naudojimo ne pagal paskirtį atvejų ir tvarkos aprašo patvirtinimo“, 3.1. – 3.19., 3.22., 5.1. – 5.10., 5.12. – 5.17. punktuose, jei nuomos objekto naudojimas atitiks kitas šiuose punktuose nustatytas sąlygas.
Kontaktai
Jurgita Kavaliauskienė
Mob. telefonas
+37062058131
El. paštas
Jurgita.Kavaliauskiene@turtas.lt