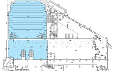
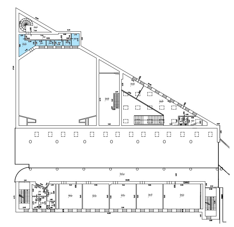
Trumpalaikė/ilgalaikė salės nuoma, adresu Laisvės pr. 28, Vilnius, Vilniaus m. sav.

Preliminari nuomos kaina be PVM
€2566 mėn.
Preliminari 1m2 nuomos kaina be PVM
€3.47 m2/mėn.
Plotas
739.44 m2
Komunalinės paslaugos
Elektra – Yra, Vandentiekis, kanalizacija - Yra, Šildymas - Yra, Centrinis.
Kita
Galima trumpalaikė/ilgalaikė salės nuoma renginiams, pasirodymams ir panašiai veiklai.
Kontaktai
Indrė Staniulienė
Mob. telefonas
+37061436202