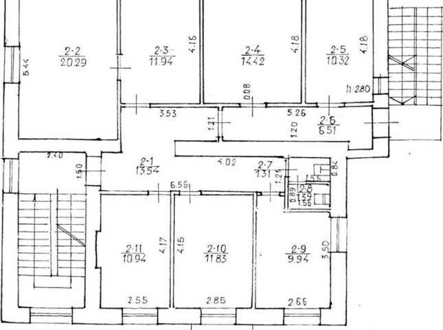
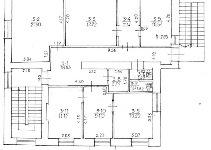
Administracinės paskirties pastatas (501,25 kv. m.), Ankštoji g. 1A, Vilnius, Vilniaus m. sav.

Ankštoji g. 1A, Vilnius, Vilniaus m. sav.
Konkurso tipas
E-Nuoma
Pradinė nuomos kaina be PVM
€3700/mėn.
Pradinė 1 m2 nuomos kaina be PVM
€7.38 m2/mėn.
Pradinė 1 m2 nuomos kaina su PVM
€8.93 m2/mėn.
Nuomojamas plotas
501.25 m2
Nuomos terminas
2 metai

Nuomojamas 501,25 kv. m. ploto administracinės paskirties pastatas. Patalpos nuomojamos esamos būklės, nuomininkas turės galimybę (savo lėšomis) patalpas įsirengti pagal savo poreikius.

Paskirtis
Administracinė
Nuomojama veiklai
Administracinei veiklai. Nuomos objektas taip pat gali būti naudojamas kitoms veikloms, kurios yra nurodytos Statinio (jo patalpų) naudojimo ne pagal paskirtį atvejų ir tvarkos aprašo, patvirtinto Lietuvos Respublikos Vyriausybės 2011 m. spalio 12 d. nutarimu Nr. 1178 „Dėl statinio (jo patalpų) naudojimo ne pagal paskirtį atvejų ir tvarkos aprašo patvirtinimo“, 5 ir 51 punktuose, jei nuomos objekto naudojimas atitiks kitas šiuose punktuose nustatytas sąlygas.
Apžiūros laikas

Dėl nuomojamo turto apžiūros kreiptis:
Apžiūros laikas: 2026-01-30 – 2026-03-02, 10:00 val. – 15.00 val.
Apie savo atvykimą būtina informuoti kontaktinį asmenį ne vėliau kaip prieš 1 darbo dieną iki apžiūros.

Unikalus Nr.
1094-0084-2039
Žymėjimas plane
3B3/p
Paruošimas nuomai
Nuomos objektas laisvas
Nuoma dalimis
Neskaidomas
Komunalinės paslaugos
Elektra – yra, Vandentiekis, kanalizacija – Yra, Centrinis, Šildymas - Yra, Centrinis
Komunalinių paslaugų apmokėjimas
Sąskaitas už Nuomos objekte suteiktas Komunalines paslaugas paskirstys Nuomotojas. Galimų Komunalinių paslaugų sąrašas pateiktas Sutarties projekto Priede Nr. 2.
Eksploatacinės paslaugos
Galimų Eksploatacinių paslaugų sąrašas pateiktas Sutarties projekto Priede Nr. 2. Esant poreikiui, dėl papildomų Eksploatacinių paslaugų, kurių nėra nurodyta minėtame priede arba tuo atveju, kai Nuomotojas neteikia priede nurodytų paslaugų, Nuomininkas turės teisę savo vardu sudaryti sutartis su tokių Eksploatacinių paslaugų teikėjais ir už šias Nuomos objekte suteiktas Eksploatacines paslaugas Nuomininkas atsiskaitys tiesiogiai su Eksploatacinių paslaugų teikėjais.
Eksploatacinių paslaugų apmokėjimas
Sąskaitas už Nuomos objekte suteiktas Eksploatacines paslaugas nurodytas Sutarties projekto Priede Nr. 2 paskirstys Nuomotojas. Už kitas Nuomos objekte, pagal Nuomininko poreikį suteiktas Eksploatacines paslaugas, pagal Nuomininko vardu sudarytas Eksploatacinių paslaugų sutartis su Eksploatacinių paslaugų tiekėjais, Nuomininkas atsiskaitys tiesiogiai su šių Eksploatacinių paslaugų teikėjais.
Specialiosios nuomos sąlygos
  1. Mokesčius už Nuomos objekte suteiktas Komunalines/Eksploatacines paslaugas Nuomotojas apskaičiuoja vadovaudamasis Valstybės įmonės Turto banko generalinio direktoriaus 2023-05-29 įsakymu Nr. P1-130 „Dėl valstybės įmonės turto banko patikėjimo teise valdomų pastatų (patalpų) bendro naudojimo patalpų priskyrimo pagrindinėms patalpoms ir išlaikymo sąnaudų apskaičiavimo bei paskirstymo pastatų (patalpų) naudotojams, aprašo patvirtinimo“: https://turtas.lt/wp-content/uploads/2021/11/2023-05-29-nr-p1-130-del-valstybes-imones-turto-banko-patikejimo-teise-valdomu-pastatu-patalpu-islaikymo-sanaudu-apskaiciavimo-bei-paskirstymo-naudotojams-aprasas.docx arba kitu, tuo metu galiojančiu aktualiu Nuomotojo lokaliniu teisės aktu.
  2. Nuomos objektas įtrauktas į VĮ Turto banko ruošiamų parduoti objektų sąrašą:

https://aukcionai.turtas.lt/busparduodama/details/VL000672

  1. Sutarties Specialiose sąlygose taip pat bus nurodyta:

3.1. Kai išnuomoto turto reikia valstybės funkcijoms atlikti, Nuomotojas turi teisę vienašališkai nutraukti Sutartį (nesikreipiant į teismą) raštu įspėjęs Nuomininką ne mažiau kaip prieš 6 (šešis) mėnesius iki Sutarties nutraukimo. Ši nuostata turės pirmenybę Sutarties Bendrijų sąlygų  9.5.4 punkto atžvilgiu.

Konkurso tipas
E-Nuoma
Dalyvių registravimo pradžia
2026 03 02, 0:00
Dalyvių registravimo pabaiga
2026 03 04, 23:59
Konkurso vykdymo data ir laikas
2026 03 09, 9:00 - 2026 03 10, 13:59
Dokumentų pateikimo vieta
https://evarzytines.lt/evs
Konkurso vykdymo vieta
https://evarzytines.lt/evs
Dalyvio pradinis įnašas be PVM
€ 11098.00
Dalyvio pradinis įnašas su PVM
€ 13428.58
Dalyvio registravimo mokestis
€ 50
Nuomos kainos didinimo intervalas
€ 150
Sąskaitos numeris
LT51 7044 0600 0044 3925
Bankas
AB SEB bankas
Banko SWIFT
CBVILT2X
Gavėjo kodas
112021042
Nuomos konkursas vykdomas vadovaujantis Lietuvos Respublikos Vyriausybės 2001 m. gruodžio 14 d. nutarimu Nr. 1524 „Dėl valstybės ilgalaikio materialiojo turto, valstybės ir savivaldybių nekilnojamojo turto nuomos“ patvirtintu Valstybės ir savivaldybių nekilnojamojo turto nuomos viešojo konkurso organizavimo ir vykdymo informacinių technologijų priemonėmis tvarkos aprašu bei šiomis Bendrosiomis nuomos konkurso sąlygomis.
Kontaktai informacijai apie turtą ir turto apžiūros klausimais
Ivona Čekenienė
Mob. telefonas
+37067563474
Kontaktai registracijos į konkursą klausimais
Dovilė Baranauskienė
Mob. telefonas
+37061606104