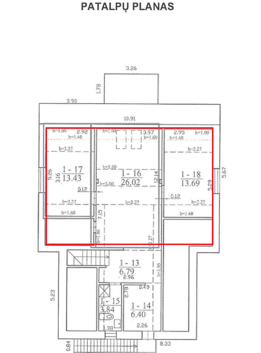
Administracinės paskirties patalpos, Vytauto g. 53, Trakai, Trakų r. sav. (77,18 kv. m.)
Nuomojamos 77,18 kv. m. ploto administracinės paskirties patalpos, esančios mansardiniame pastato aukšte. Patalpos nuomojamos esamos būklės, nuomininkas turės galimybę (savo lėšomis) patalpas įsirengti pagal savo poreikius.
Apžiūros laikas: 2025-12-30, 9.00 val. – 2026-01-06, 15.00 val.
Apie savo atvykimą būtina informuoti kontaktinį asmenį ne vėliau kaip prieš 1 darbo dieną iki apžiūros.
Mokesčius už Nuomos objekte suteiktas Komunalines/Eksploatacines paslaugas Nuomotojas apskaičiuoja vadovaudamasis Valstybės įmonės Turto banko generalinio direktoriaus 2023-05-29 įsakymu Nr. P1-130 „Dėl valstybės įmonės turto banko patikėjimo teise valdomų pastatų (patalpų) bendro naudojimo patalpų priskyrimo pagrindinėms patalpoms ir išlaikymo sąnaudų apskaičiavimo bei paskirstymo pastatų (patalpų) naudotojams, aprašo patvirtinimo“: https://turtas.lt/wp-content/uploads/2021/11/2023-05-29-nr-p1-130-del-valstybes-imones-turto-banko-patikejimo-teise-valdomu-pastatu-patalpu-islaikymo-sanaudu-apskaiciavimo-bei-paskirstymo-naudotojams-aprasas.docx arba kitu, tuo metu galiojančiu aktualiu Nuomotojo lokaliniu teisės aktu.