Patalpos daiktų/produkcijos laikymui ir saugojimui (18,02 kv. m.), Laisvės pr. 28, Vilnius, Vilniaus m. sav.

Laisvės pr. 28, Vilnius, Vilniaus m. sav.
Konkurso tipas
E-Nuoma
Pradinė nuomos kaina be PVM
€35.00/mėn.
Pradinė 1 m2 nuomos kaina be PVM
€1.90 m2/mėn.
Pradinė 1 m2 nuomos kaina su PVM
€2.30 m2/mėn.
Nuomojamas plotas
18.02 m2
Nuomos terminas
3 metai
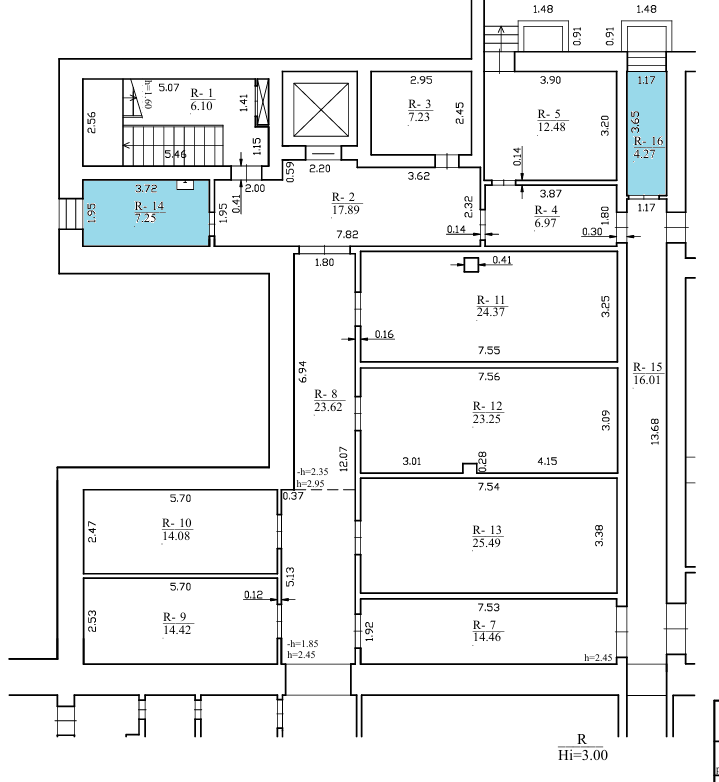
Patalpų indeksas
R-14, R-16
Aukštas
Rūsys

Nuomojamos patalpos daiktų/produkcijos laikymui ir saugojimui, išsidėsčiusios rūsyje, viso nuomojamas plotas 18,02 kv. m. Patalpos nuomojamos esamos būklės, nuomininkas turės galimybę (savo lėšomis) patalpas  įsirengti pagal savo poreikius.

Paskirtis
Administracinė
Nuomojama veiklai
Patalpos yra rūsyje. Naudoti daiktų/produkcijos laikymui ir saugojimui. Konkurso dalyvis paraiškoje turi nurodyti kokios rūšies/pobūdžio daiktus/produkciją ketina laikyti ir saugoti. Nuomos objekte draudžiama sandėliuoti sprogias, naftos, pavojingas chemines medžiagas, ir bet kokias medžiagas, kurios gali daryti įtaką ar pakenkti žmogaus sveikatai ir aplinkai taip pat – sprogmenis bei pirotechniką ir pan. Patalpas taip pat galima naudoti kitoms veikloms, kurios yra nurodytos Statinio (jo patalpų) naudojimo ne pagal paskirtį atvejų ir tvarkos aprašo, patvirtinto Lietuvos Respublikos Vyriausybės 2011 m. spalio 12 d. nutarimu Nr. 1178 „Dėl statinio (jo patalpų) naudojimo ne pagal paskirtį atvejų ir tvarkos aprašo patvirtinimo 5.1. – 5.10., 5.12. – 5.16. punktuose, jei nuomos objekto naudojimas atitiks kitas šiuose punktuose nustatytas sąlygas.
Apžiūros laikas

Apžiūros laikas: 2026-04-23 – 2026-04-30, 10:00 val. – 15.00 val.

Apie savo atvykimą būtina informuoti kontaktinį asmenį ne vėliau kaip prieš 2 darbo dienas iki apžiūros.

Unikalus Nr.
1099-7015-4002
Žymėjimas plane
1B2p
Paruošimas nuomai
Nuomos objektas laisvas
Nuoma dalimis
Neskaidomas.
Komunalinės paslaugos
Elektra – Yra, Vandentiekis, kanalizacija – pastate – Yra, centriniai (patalpos yra rūsyje, jose sanitarinių mazgų nėra, galima bus naudotis san. mazgais 1 pastato aukšte), Šildymas – Yra, centrinis
Komunalinių paslaugų apmokėjimas
Sąskaitas už Nuomos objekte suteiktas Komunalines paslaugas paskirstys Nuomotojas. Galimų Komunalinių paslaugų sąrašas pateiktas Sutarties projekto Priede Nr. 2.
Eksploatacinės paslaugos
Galimų Eksploatacinių paslaugų sąrašas pateiktas Sutarties projekto Priede Nr. 2. Esant poreikiui, dėl papildomų Eksploatacinių paslaugų, kurių nėra nurodyta minėtame priede arba tuo atveju, kai Nuomotojas neteikia priede nurodytų paslaugų, Nuomininkas turės teisę savo vardu sudaryti sutartis su tokių Eksploatacinių paslaugų teikėjais ir už šias Nuomos objekte suteiktas Eksploatacines paslaugas Nuomininkas atsiskaitys tiesiogiai su Eksploatacinių paslaugų teikėjais.
Eksploatacinių paslaugų apmokėjimas
Sąskaitas už Nuomos objekte suteiktas Eksploatacines paslaugas nurodytas Sutarties projekto Priede Nr. 2 paskirstys Nuomotojas. Už kitas Nuomos objekte, pagal Nuomininko poreikį suteiktas Eksploatacines paslaugas, pagal Nuomininko vardu sudarytas Eksploatacinių paslaugų sutartis su Eksploatacinių paslaugų tiekėjais, Nuomininkas atsiskaitys tiesiogiai su šių Eksploatacinių paslaugų teikėjais.
Specialiosios nuomos sąlygos

Mokesčius už Nuomos objekte suteiktas Komunalines/Eksploatacines paslaugas Nuomotojas apskaičiuoja vadovaudamasis Valstybės įmonės Turto banko generalinio direktoriaus 2023-05-29 įsakymu Nr. P1-130 „Dėl valstybės įmonės turto banko patikėjimo teise valdomų pastatų (patalpų) bendro naudojimo patalpų priskyrimo pagrindinėms patalpoms ir išlaikymo sąnaudų apskaičiavimo bei paskirstymo pastatų (patalpų) naudotojams, aprašo patvirtinimo“: https://turtas.lt/wp-content/uploads/2021/11/2023-05-29-nr-p1-130-del-valstybes-imones-turto-banko-patikejimo-teise-valdomu-pastatu-patalpu-islaikymo-sanaudu-apskaiciavimo-bei-paskirstymo-naudotojams-aprasas.docx  arba kitu, tuo metu galiojančiu aktualiu Nuomotojo lokaliniu teisės aktu.

Konkurso tipas
E-Nuoma
Dalyvių registravimo pradžia
2026 05 04, 0:00
Dalyvių registravimo pabaiga
2026 05 06, 23:59
Konkurso vykdymo data ir laikas
2026 05 14, 9:00 - 2026 05 15, 13:59
Dokumentų pateikimo vieta
https://evarzytines.lt/evs
Konkurso vykdymo vieta
https://evarzytines.lt/evs
Dalyvio pradinis įnašas be PVM
€ 105.00
Dalyvio pradinis įnašas su PVM
€ 127.05
Dalyvio registravimo mokestis
€ 1
Nuomos kainos didinimo intervalas
€ 5
Sąskaitos numeris
LT51 7044 0600 0044 3925
Bankas
AB SEB bankas
Banko SWIFT
CBVILT2X
Gavėjo kodas
112021042
Nuomos konkursas vykdomas vadovaujantis Lietuvos Respublikos Vyriausybės 2001 m. gruodžio 14 d. nutarimu Nr. 1524 „Dėl valstybės ilgalaikio materialiojo turto, valstybės ir savivaldybių nekilnojamojo turto nuomos“ patvirtintu Valstybės ir savivaldybių nekilnojamojo turto nuomos viešojo konkurso organizavimo ir vykdymo informacinių technologijų priemonėmis tvarkos aprašu bei šiomis Bendrosiomis nuomos konkurso sąlygomis.
Kontaktai informacijai apie turtą ir turto apžiūros klausimais
Tautvydas Valeika
Mob. telefonas
+37069521874
Kontaktai registracijos į konkursą klausimais
Dovilė Baranauskienė
Mob. telefonas
+37061606104